Starting at $549,000 on your lot







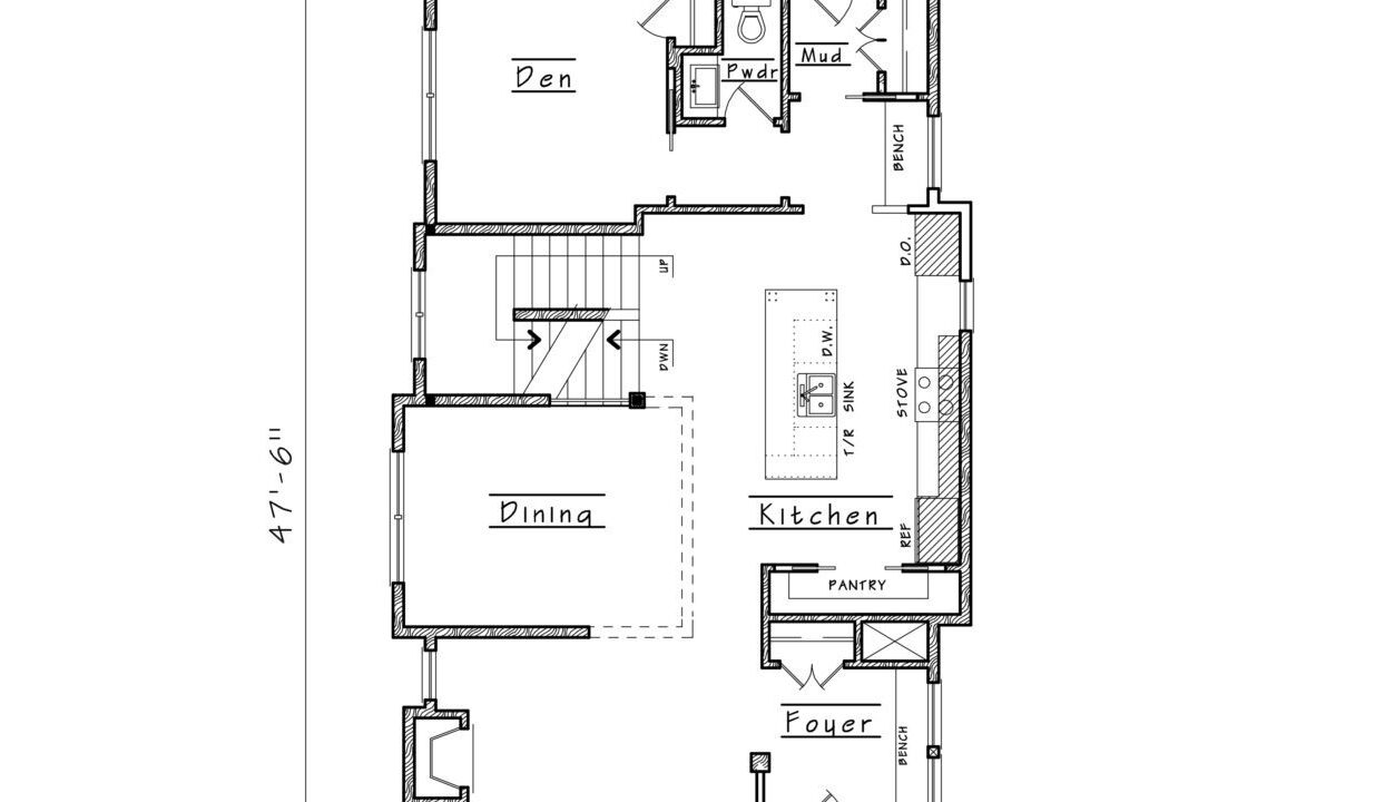
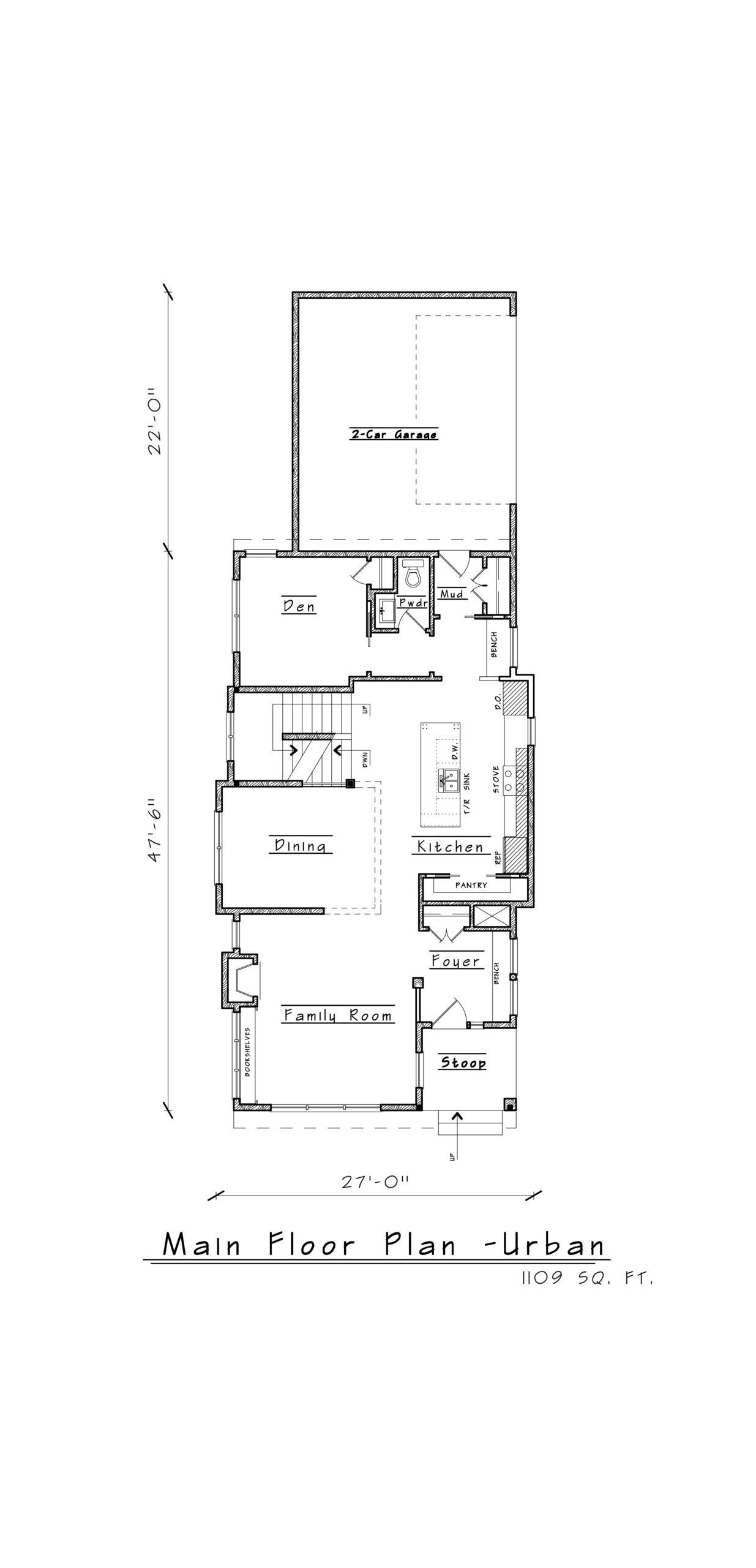
Our most flexible model, Urban can easily be converted to fit your lot and your needs. Maximizing living space with a Front Stoop opening to a protected Foyer, you’ll enter into an Open Concept Family/Dining area which we can configure to suit your desired configurations for television and dining. The Chef’s Kitchen has every possible convenience and a walk-in pantry, too. A Den in the rear of the home could easily be converted to a Guest Bedroom or ADU with its closet and ½ bath. A mud room leads to a 2-car Garage.
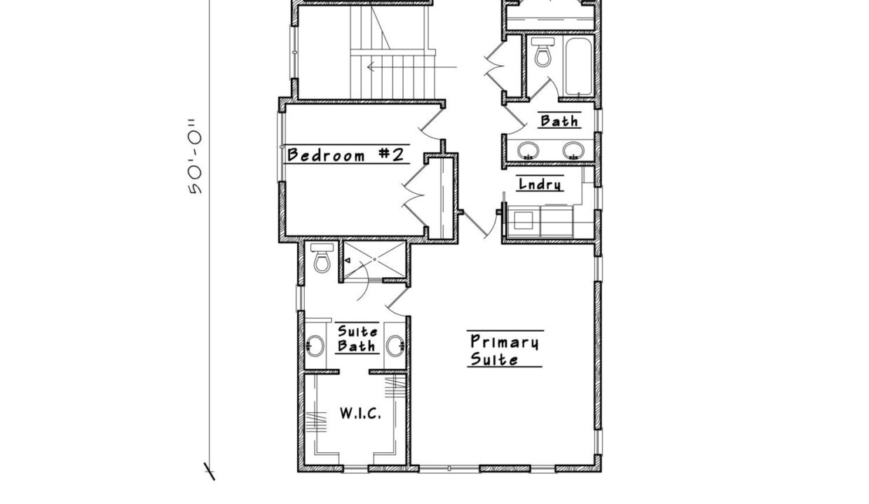
Upstairs, you’ll find an enclosed Primary Suite with a 4-piece bath and walk-in closet. Three more Bedrooms share a 2-room hall bath. There’s also a Laundry Room and Linen Closet. This is a fabulous home with lots of private spaces. The Urban Curtis is a fabulous home with lots of private spaces. As shown with 2329 square feet above grade it starts at $549.000.
From the moment you walk into Wren, you’ll feel at…
Starting at $549,000 on your lot
Copyright 2023 Curtis Ventures LLC. Website designed and managed by Home Builder Marketing Pros.
Wren Owning a home is a keystone of wealth… both financial affluence and emotional security.
Suze Orman